Store Design
Production-ready retail design with full execution confidence.
We deliver store designs that balance brand expression, operational needs, and manufacturing feasibility. Every concept is developed to be engineered, produced, and delivered efficiently—without redesigns or delays.
From concept to rollout, we design fixtures, layouts, and merchandising systems that improve product presentation, customer flow, and brand consistency. Designs are cost-controlled, durable, and ready for real-world retail environments.

Retail Concept Design
We convert your brand values, positioning, and customer experience goals into a clear design direction, defining style, mood, and spatial language that can be executed consistently.
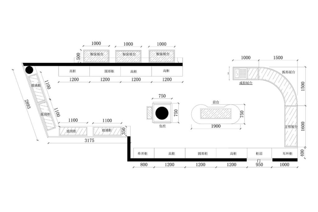
Store Layout & Space Planning
We plan efficient store layouts that define customer flow, zoning, and functional areas. Every layout supports merchandising goals while maximizing available space.


Visual Merchandising Design
We define how products are grouped, displayed, and highlighted to support storytelling and conversion.
Custom Store Fixture Design
We design bespoke fixtures engineered specifically for your merchandise, space, and production requirements.


Material & Finish Selection
We specify materials and finishes based on design intent, usage conditions, and budget—validated for high-traffic retail environments.
Lighting & Display Integration Design
We integrate lighting into fixtures and layouts to enhance visibility and atmosphere while remaining compatible with manufacturing and installation.


3D Interior Design
We produce accurate, production-ready 3D visuals that show how the space will look and function, including materials, lighting, and merchandising details.
Design for Manufacturing (DFM)
We refine designs to ensure they are structurally sound, cost-efficient, and suitable for mass production or multi-store rollouts.


Prototype & Sample Development Support
We support physical prototypes and samples to confirm design, materials, and functionality.
Rollout & Multi-Store Design Adaptation
We adapt approved designs for different store sizes and regional requirements while maintaining brand consistency.

Need a Custom Store Design?
Tell us about your brand, space, and rollout plans. Our team will review your requirements and provide a production-ready design approach with clear timelines, controlled costs, and reliable execution.






